Imagine 103

IMI Residence - Comision 0 - Spatiu comercial la parter - 89.9 mp - cu vitrina

ID: P247097 Sanandrei, Est 22
890€ + TVA
Descriere
La pretul afisat se adauga TVA 21%

IMI Residence, dezvoltator cu peste 10 ani de experienta in domeniul imobiliar, ofera spre inchiriere spatiu comercial amplasat intr-un cartier nou rezidential al comunei Sanandrei, localitate care isi propune sa valorifice potentialul si oportunitatile de dezvoltare, inclusiv crearea unui mediu de afaceri competitiv, destinat sa atraga investitii importante din tara si strainatate si care ofera serviciile necesare pentru a trai in armonie alaturi de cei dragi: gradinita cu program prelungit, scoala generala cu clase I-VIII, bazine de inot cu cursuri pentru copii, policlinica medicala, terenuri de sport, restaurante, spalatorii, mijloace de transport catre si dinspre Timisoara.

Linia M41 de autobuz (Timișoara - Sanandrei - Carani) are 13 de opriri, prima stație la Vasile Pârvan și ultima stație la Darson:
- Orarul autobuzului M41 de luni pana vineri: începe programul la 5:00 și se termină la 22:35. Frecventa: 1h:10, 15 curse pe zi
- Orarul autobuzului M41 sambata si duminica: începe programul la 6:25 și se termină la 15:00. Frecventa: 8h:35, 2 curse pe zi

Asa cum am obisnuit clientii, toate materialele folosite fac parte din clasa superioara, la fel dotarile: centralele termice Romstal, decorativa siliconata Kober, izolatia Austroterm de 10 cm, incalzirea in pardoseala, instalatiile sanitare Ideal Standard de la Romstal, geamurile tripane Rehau cu dubla deschidere si 6 camere de izolatie pe tamplarie reprezinta cateva notiuni care intaresc angajamentul nostru de a oferi imobile bine construite, bine finisate, de care sa va bucurati.

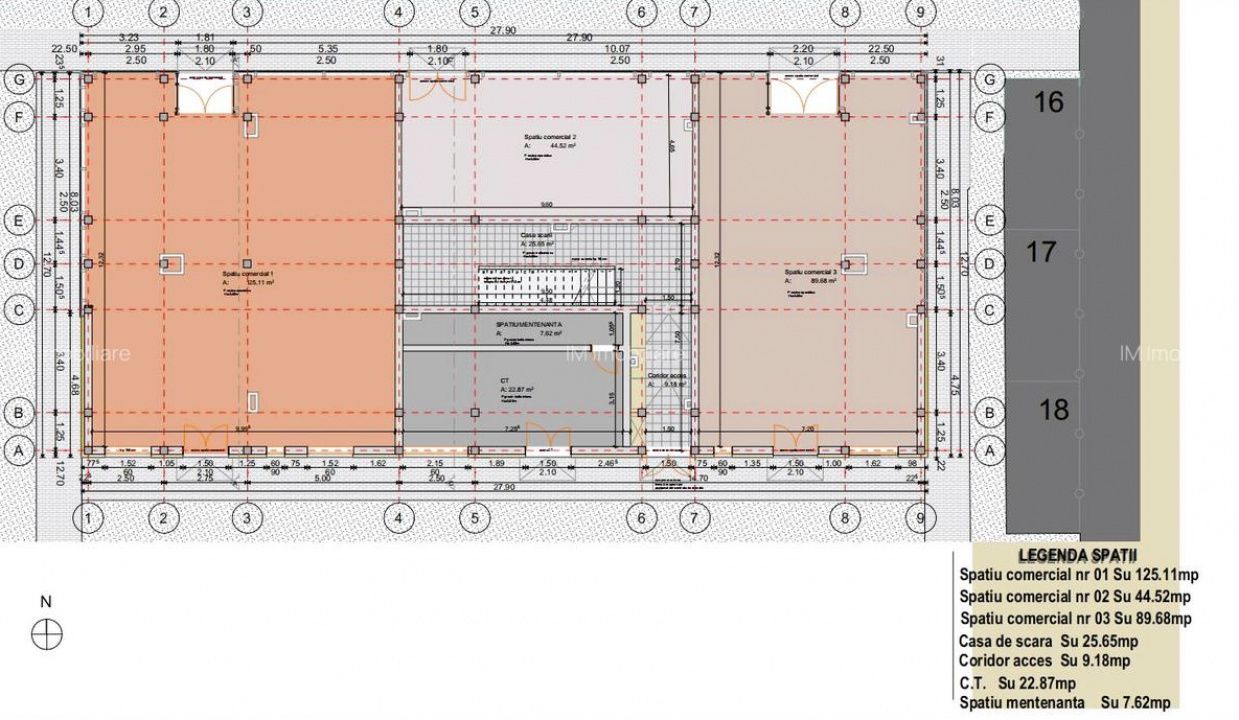
Spatiile comerciale propuse spre inchiriere sunt localizate la parterul unei cladiri de aprtamente in regim P+2E, unde parterul are destinatie exclusiv comerciala si este format din 3 spatii comerciale distincte, de marimi diferite si apartine zonei residentiale IMI Residence
Caracteristici
  • ID:P247097
  • Nr. camere:1
  • S. utila:89.98 mp
  • S. vitrina:2.80 m
  • Comp.:Open space
  • Nr. bai:1
  • Nr. parcari:1
  • An constructie:2026
  • Structura rezistenta:Caramida
  • Tip imobil:Bloc
  • Regim inaltime:P+2
Specificatii
Curent
Apa
Canalizare
Gaz
Curent trifazic
Acces internet
Fibra optica
Centrala proprie
Incalzire pardoseala
Aer conditionat
Bloc izolat termic
Vopsea lavabila
Faianta
Parchet
Gresie
Marmura
Mocheta
Dusumea
Linoleum
Ferestre PVC
Ferestre Termopan
Lampi
Spoturi
Aplice
Exterior cladire
Lumina naturala
Nemobilat
Videointerfon
Localizare
Alin Truica
Esti interesat de aceasta proprietate ?
Proprietati similare
0% comision De inchiriat Imagine 718
Ghiroda - Sp comercialBirouri - 140mp utili - 3000mp teren
Ghiroda, Central 1.000€
150mp
0% comision De inchiriat Imagine 1061
Gh. Lazar - Spatii birouri - Su: 144mp - Centrala proprie
Timisoara, Gheorghe Lazar 800€
5 camere 144mp