Imagine 103

Elisabetin - Apartament exclusivist - 5 cam - Su: 135mp - Garaj privat

Aceasta proprietate nu mai este activa! Pentru oferte similare contactati agentul
ID: P250536 Timisoara, Elisabetin 42
259.900€ 264.900€
Descriere
IM Imobiliare vă oferă spre vânzare un apartament exclusivist de 5 camere, tip „Samantha”, în zona foarte căutată Elisabetin — ideal pentru familie sau investitor.

Descriere proprietate

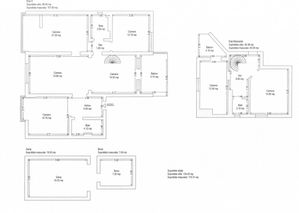
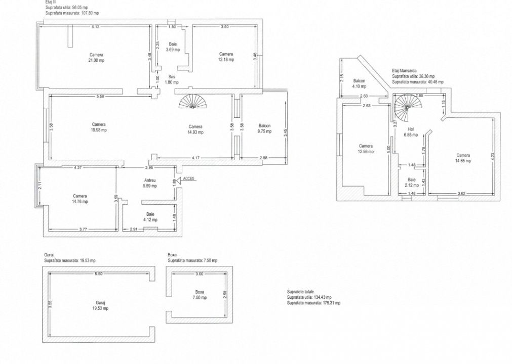
Tip: apartament semidecomandat, 5 camere, pe 2 nivele (etaj + mansardă)
Etajul 3: living spatios, 2 camere, bucătărie, antreu, 2 băi, balcon
Mansardă: 2 camere, baie, balcon
Suprafață utilă și compartimentare practică, cu potențial pentru personalizare
Facilități și dotări

Centrală termică proprie pe gaz și calorifere (confort termic eficient)
Garaj privat cu cramă subterană
Boxă privată la parter (spațiu de depozitare)
Localizare și vecinătăți

Zona: Elisabetin — foarte căutată, acces facil la tot ce e necesar
În imediata apropiere: Lidl, Kaufland, Profi, restaurante, Spitalul Județean
Acces la transport public (stații în apropiere)
De ce să alegeți această proprietate

Compartimentare pe două nivele oferind separare clară între zona de zi și cea privată
Facilități rare (garaj cu cramă, boxă) ce adaugă valoare practică
Locație premium, ideală pentru trai urban confortabil sau închiriere
Caracteristici
  • ID:P250536
  • Nr. camere:5
  • Nr. dormitoare:4
  • S. utila:135.00 mp
  • S. balcoane:10.00 mp
  • S. utila totala:175.00 mp
  • Comp.:Semidecomandat
  • Confort:1
  • Etaj:Etaj 3
  • Nr. bucatarii:1
  • Nr. bai:3
  • Nr. balcoane:2
  • An constructie:1980
  • An renovare:2025
  • Structura:Beton
  • Tip imobil:Bloc
  • Regim inaltime:P+3+M
Specificatii
Curent
Apa
Canalizare
Gaz
Acces internet
Fibra optica
Centrala proprie
Calorifere
Vopsea lavabila
Faianta
Parchet
Gresie
Ferestre Lemn
Usa intrare Metal
Usa interior Lemn
Debara
Apometre
Contor gaz
Complet mobilat
Interfon
Acoperis
Localizare
Dan Popescu
Esti interesat de aceasta proprietate ?
Proprietati similare
De vanzare Imagine 34
Apartament SAD | Ultracentral | Clădire istorică
Timisoara, Ultracentral 240.000€ 285.000€
2 camere 1 baie 80mp
0% comision De vanzare Imagine 825
Apartament SAD | Ultracentral | Clădire istorică
Timisoara, Ultracentral 250.000€ + TVA
2 camere 80mp